- Chemin de fer
- Tramway
- Console
- Transversaux porteurs
- Caténaire
- Croisements
- Ligne régularisée
- Sectionneurs / Alimentations
- Isolateurs de section
- Commande / électronique
- Plafond / Tunnel
- Système de dégivrage
- Outillages
- Trolleybus
- Console
- Transversaux porteurs
- Croisements
- Aiguillages
- Sectionneurs / Alimentations
- Isolateurs de section
- Sytèmes d'emperchage
- Équipement du véhicule
- Commande / électronique
- Plafond / Tunnel
- Outillages
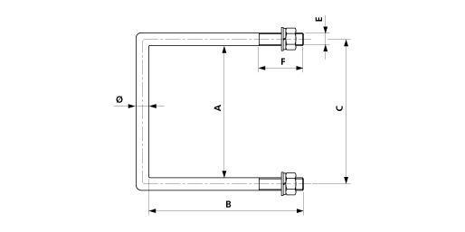
Etrier de fixation, Ø = 16 mm sur HEB 260
ajouté au panier
Afficher le panier
E0888-06
Dimensions
Ø: 16 mmA: 266 mm
E: M16
F: 40 mm
B: 306 mm
C: 282 mm
Matériel et poids
Poids: 1.500 kgMatériel: Acier galv.