- Chemin de fer
- Tramway
- Console
- Transversaux porteurs
- Caténaire
- Croisements
- Ligne régularisée
- Sectionneurs / Alimentations
- Isolateurs de section
- Commande / électronique
- Plafond / Tunnel
- Système de dégivrage
- Outillages
- Trolleybus
- Console
- Transversaux porteurs
- Croisements
- Aiguillages
- Sectionneurs / Alimentations
- Isolateurs de section
- Sytèmes d'emperchage
- Équipement du véhicule
- Commande / électronique
- Plafond / Tunnel
- Outillages
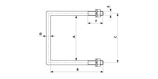
Etrier de fixation, Ø = 16 mm sur HEB 220
ajouté au panier
Afficher le panier
E0888-04
Dimensions
A: 226 mmC: 242 mm
E: M16
F: 40 mm
B: 266 mm
Ø: 16 mm
Matériel et poids
Poids: 1.340 kgMatériel: Acier galv.