- Bahn
- Rohbauelemente
- Fahrdraht / Seile / Kabel
- Isolatoren
- Ausleger
- Kettenwerke
- Nachspannungen / Abfangungen
- Erdung und Rückstrom
- EL-Verbindungen
- Klemmen und Verbindungselemente
- Schalter/Schaltposten
- Streckentrenner
- Berührungsschutz
- Werkzeuge
- Enteisungssystem
- Strassenbahn
- Ausleger
- Querspanner
- Kettenwerke
- Kreuzungen
- Nachspannungen
- Trennungen/Speisungen
- Streckentrenner
- Steuerungen / Elektronik
- Decken / Unterführungen
- Enteisungssystem
- Werkzeuge
- Trolleybus
- Ausleger
- Querspanner
- Kreuzungen
- Weichenanlagen
- Trennungen / Speisungen
- Streckentrenner
- Eindrahtungstrichter
- Fahrzeugausrüstung
- Steuerungen / Elektronik
- Decken / Unterführungen
- Werkzeuge
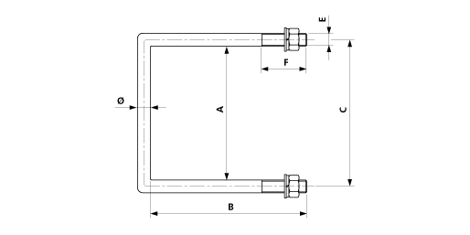
Befestigungsbügel, Ø = 20 mm an HEB 180
wurde dem Warenkorb hinzugefügt
Warenkorb anzeigen
E1484-02
Abmessungen
Ø: 20 mmA: 190 mm
B: 225 mm
E: M20 mm
F: 45 mm
C: 210 mm
Material und Gewicht
Gewicht: 1.720 kgMaterial: St fverz